Startseite

zur Startseite


Willkommen im Baugemeinschaftsprojekt 'Grünau' in Berlin/Treptow-Köpenick
der Baugemeinschaft 'Grünau' GbR

>>> Diese Baugemeinschaft sucht keine Mitglieder mehr <<<

letzte Aktualisierung: 03.11.2025

zum kontakt

Visualisierung
abstrahierte Darstellung

Lage

Lage in der Stadt
... in der Stadt

     

Lage im Bezirk / Ortsteil
... im Bezirk / Ortsteil

Projektvorbereitung - bewerben Sie sich jetzt

Allgemein

Wir wollen ein modernes, nachhaltiges und ökologisches Mehrfamilienhaus als Baugemeinschaft im Ortsteil Grünau entwickeln, planen und bauen.

Das Projekt wird durch einen professionellen Projektleiter betreut.

Wir sind preisgekrönte Projektentwickler und Planer, die das Projekt vorbereiten und durchführen.

   

Unsere Referenzen finden Sie auf unserer Bürowebseite www.sieglundalbert.de.

Den genauen Standort des Hauses werden wir erst benennen, wenn die Grundstückskaufverhandlungen weiter fortgeschritten sind.

Wir stehen am Beginn des Prozesses. Von daher sind alle folgenden Ausführungen nur als Ziele zu verstehen!

ca. 9 Eigentumswohnungen mit Gemeinschaftsgarten
- 9 Zimmerwohnung mit ca 200 m²
- 6 Zimmerwohnung mit ca. 130 m²
- 4 Zimmerwohung mit ca. 80 m²
Raumhöhe: 2,60-2,80 m
Balkon / Terrasse
EG-Wohnung mit eigenem (kleinen) Garten

Gleichwertige Räume, die eine große Vielfältigkeit der Nutzung ermöglichen
Barrierefreiheit des gesamten Hauses
Holzmassivbau
Dachbegrünung, nach Möglichkeit schmetterlings- und bienenfreundlich
Effizienzhaus-Stufe 40 für niedrige laufende Kosten und möglichst große Unabhängigkeit vom Energiemarkt und eine geringe Belastung unserer Umwelt

Die Kosten sind noch nicht bekannt, bestehen aber aus:
Grundstückskauf
Mitgliederwerbung
Management
Projektentwicklung
Planungskosten
Bauüberwachung
Baukosten

Gebäudebeispiele

hier geht es zu unserem 'Berliner Gartenhaus' in Kreuzberg ...         

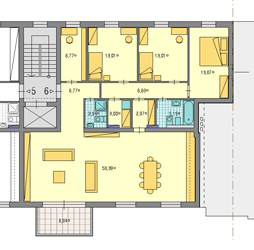
Grundrissbeispiele (aus anderen Projekten)

             

Bewerbung

Wenn Sie bei diesem Projekt mitmachen möchten, senden Sie mir bitte eine mail mit Ihren Kontaktinformationen und Wohnflächen- bzw. Zimmerbedarfen.

Mail: Grünau Bewerbung

Daraus entstehen Ihnen keine Kosten oder Pflichten.
Ich werde mich bei Ihnen melden, wenn das Projekt für Sie bereit ist.

Schöne Grüße, Alois Albert

 

nach oben :: kontakt

Kontakt

sieglundalbert Gesellschaft von Architekten mbH
Regine Siegl, Architektin
Alois Albert, Architekt
 
Methfesselstr. 9, 10965 Berlin
 
Telefon (030) 21 996 420
-- oder senden Sie uns eine … mail

   

 

+ + + Zeitungsausschnitte + + +

KFW-Award 2016 - 1. Preis - H6_Neue Platte.Berlin!    AIT-Award 2016 - 3. Preis - D1, DennewitzEins    Deutscher Bauherrenpreis 2016 - D1, DennewitzEins    Anerkennung Award Deutscher Wohnungsbau 2019 - Neubau    DAM PREIS 2020 - Nominierung für H6, Neue Platte.Berlin!    POLIS AWARD 2020 - 3. Preis - H6_Neue Platte.Berlin!    DAM PREIS 2021 - Nominierung für K47 - Wohnen in der Kirche    HÄUSER-Award 2021 - Finalist - K47 - Wohnen in der Kirche

Alle Angaben sind freibleibend – Irrtum und Änderung vorbehalten -nt>

© Siegl & Albert GbR · Methfesselstr. 9 · 10965 Berlin · Deutschland · Tel (030) 21 996 420

... Impressum + Datenschutz