zur Startseite ...

zur Startseite

 
Willkommen in unserem Baugemeinschaftsprojekt 
'Welser Str. 21a'
in Berlin/Schöneberg

  

letzte Aktualisierung: 22.6.2012

zum kontakt 

Die Lage:

Standort im Bezirk Schöneberg

Übersichtsplan (Maßstab ca. 1:5000)                                                                                        ...Link zu Bing-Maps

INFORMATIONEN IN KÜRZE: 

Aktuell

Das Projekt ist für uns beendet. Der Käufer des Grundstücks bewirbt sein Projekt. Die Kaufpreise liegen bei 4.700€/m² bis 7.700€/m².

Die Lage

Das Projekt liegt zwischen Wittenberg- und Victoria-Luise-Platz in einer ruhigen Straße. Projektbestandteil ist auch eine Gartengestaltung der gemeinsamen zu nutzenden Gartenflächen.

Projektbeschreibung

Wir sind Projektentwickler und Planer, die den Grundstückskauf vorbereiten, um dann hier mit Ihnen ein Mehrfamilienhaus zu bauen. Die Details der künftigen Wohnungen werden gemeinsam bestimmt. Eine Raumhöhe von 2,90m wird angestrebt werden.
Die Organisationsform ist eine Baugemeinschaft GbR mbH.
Es werden 14 - 19 Wohnungen entstehen.

 hier geht es zu unserem 'Berliner Gartenhaus' in Kreuzberg ...           

Gebäudebeispiele                     

             

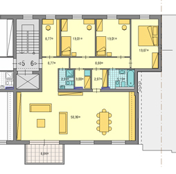
Grundrissbeispiele                     

Grundsätzliches Gestaltungsprinzip sind funktionale Räume zu Gunsten eines großen Wohn-Koch-Essbereichs, der entweder eine Terrasse oder einen Balkon haben wird. Die Wohnungen sollen barrierefrei gebaut werden, behindertengerecht nach Absprache.

Ausstattung

Der Fahrstuhl ist barrierefrei erreichbar. 
Der gesetzliche  Wärmedämmstandard sorgt für günstige Unterhaltskosten.
Verwendung finden werthaltige Materialien wie Markenfliesen, Parkett und Qualitätsprodukte im Sanitärbereich.
Jeder Wohnung wird ein eigener Kellerraum zugeordnet.

Projektbeteiligte

Projektentwicklung

:

sieglundalbert, bürogemeinschaft (Hr. Dipl.-Ing. Albert)

hier :-)

Gebäudeplanung

:

sieglundalbert, bürogemeinschaft (Hr. Dipl.-Ing. Albert)

hier :-)

Projekt-Stand

Grundstücksgebot, Kalkulationen, Konzept

Nächste Schritte

Aufnahme der nächsten Mitglieder. Weiterentwickeln des Konzeptes.

Informationstreffen

Sie werden zeitnah bei uns im Büro veranstaltet. Dort werden, nach einer  allgemeinen Einführung, Ihre Fragen beantwortet. Bei Interesse sprechen Sie uns bitte an.

 Sie erreichen mich unter (030) 21 996 420 oder mail

Schöne Grüße, Alois Albert
Berlin, den 26.9.2011

                                                                                                                                                                  

nach oben :: kontakt  

Kontakt:

Regine Siegl, Architektin
Alois Albert, Dipl.-Ing. Architektur
 
Methfesselstr. 9
10965 Berlin
 
Telefon (030) 21 996 420
- oder senden Sie uns eine … mail

 

+ + + Zeitungsausschnitte + + +

 

Alle Angaben sind freibleibend – Irrtum und Änderung vorbehalten -

© Siegl & Albert GbR · Methfesselstr. 9 · 10965 Berlin · Deutschland · Tel (030) 21 996 420

... Impressum + Datenschutz